

Textual content description supplied by the architects. Situated on the coronary heart of Science Metropolis Garching, one in all Europe’s main hubs for analysis and instructing, the brand new SAP Labs Munich Campus represents a forward-thinking mannequin for up to date workplace structure and interdisciplinary collaboration. As a gateway to the “Science Loop” – a pedestrian backbone that connects all main analysis clusters – the constructing performs a central position in shaping a vibrant and future-oriented educational and company surroundings. The campus brings collectively about 600 SAP staff and 120 researchers and college students from the Technical College of Munich (TUM), fostering a shared surroundings the place science and enterprise work aspect by aspect.




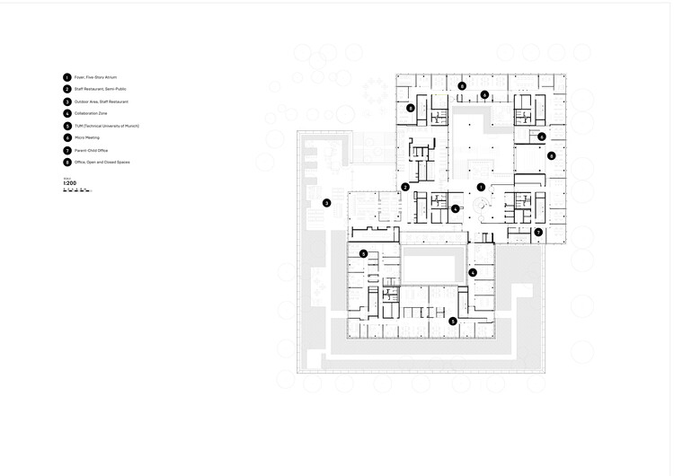
Conceived as a micro-campus, the constructing consists of three staggered volumes grouped round a central atrium. This five-story house kinds the architectural and social coronary heart of the campus. Structured like an inside public sq., the atrium connects analysis and enterprise features, workspaces, and communal zones by means of galleries, terraces, and beneficiant sightlines. A sculptural crimson spiral staircase and huge seating steps flip vertical circulation right into a shared expertise. Surrounding the atrium are a variety of features, together with a publicly accessible Very important Bar, an auditorium, and an SAP expertise space.

The spatial format helps interdisciplinary trade by means of open work areas, versatile crew areas, and hybrid assembly zones. Gastronomy performs a key position as a social connector: the centrally positioned worker restaurant, with its entry to a rooftop terrace, serves as an area for casual conferences, spontaneous encounters, and relaxed collaboration throughout groups. Versatile areas and personal cubicles provide alternatives for retreat and particular person use. The architectural language is outlined by silver-anodized pilasters and a transparent structural rhythm, giving the façade a balanced and cohesive expression. Inside, uncooked and trustworthy supplies comparable to uncovered concrete, terrazzo, and silver-anodized aluminum surfaces outline the character of the inside.




Sustainability is embedded all through the design. Following round ideas, the constructing makes use of recyclable, low-maintenance supplies, avoids pointless finishes, and permits for long-term adaptability. The roof of the parking deck is designed as an accessible terrace and out of doors house, contributing to consumer well-being and social interplay. As a vibrant intersection of innovation, analysis, and group, the SAP Labs Munich Campus is greater than a office. It provides a spatial framework for cross-sector dialogue, educational trade, and a collaborative, future-ready work tradition.













